当前位置:首页 >> 应用行业案例 > 光学科技

江苏维普光电科技有限公司

  • 所属分类:光学科技
  • 发布时间:2025-12-23 23:59:11
  • 案例概述
一、公司名称:江苏维普光电科技有限公司

二、工程地址:常州市新北区秦岭路6号锦云大厦

三、公司简介:江苏维普光电科技有限公司办公室地址位于长江文明和吴文化的发源地的常州,于2016年03月31日在常州国家高新区(新北区)市场监督管理局注册成立,注册资本为1000万元人民币,在公司发展壮大的4年里,为客户提供好的产品和技术支持、健全的售后服务,公司主要经营光学检测设备、集成电路设备、自动化设备、工业机器人装备、电子元器件、计算机软硬件的研发、制造、销售、技术咨询、技术服务及系统集成。

四、项目简介:
1、施工面积:2000平方米;
2、施工项目:
A.消防设计 审图 施工 报验 完工 验收
B.办公室装修工程  顶面 隔断 地面 水电 油漆 新风 成品安装
C.卫生间工程 顶面 隔断 地面 水电 油漆 成品安装
D.净化车间工程 顶面 隔断 地面 电 FFU净化系统 风淋 成品安装
E.车间装修工程 顶面 隔断 地面 油漆 动力电桥架 气管 成品安装
F.空调消防暖通工程 管道铺设 设备安装 调试
3、施工价格:172万;
4、施工周期:68天。
 
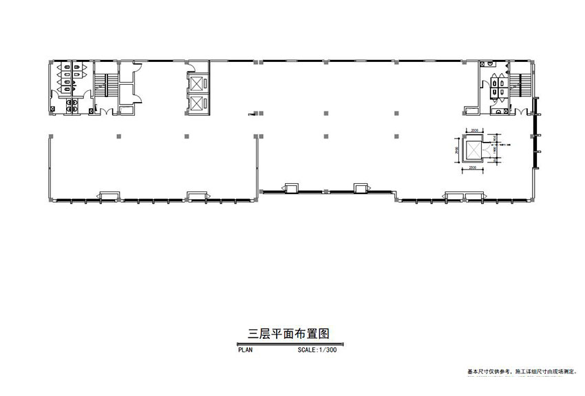
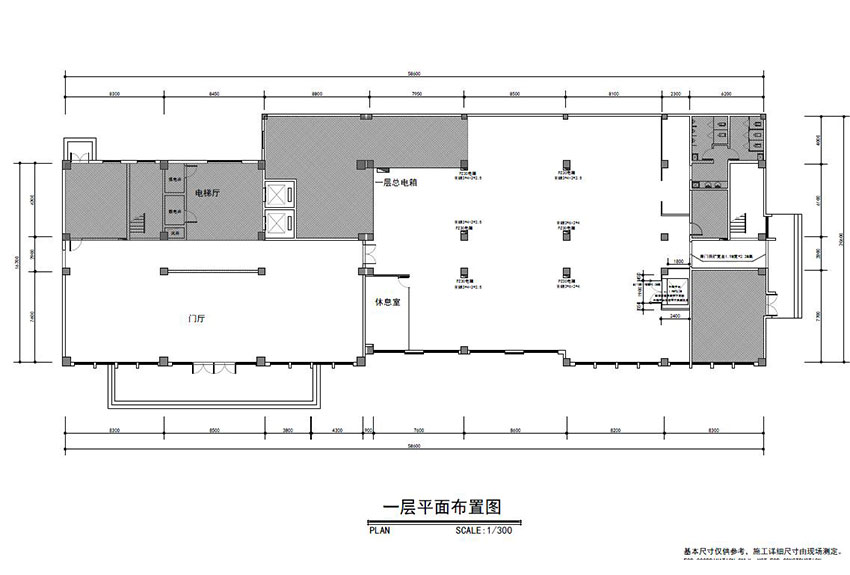
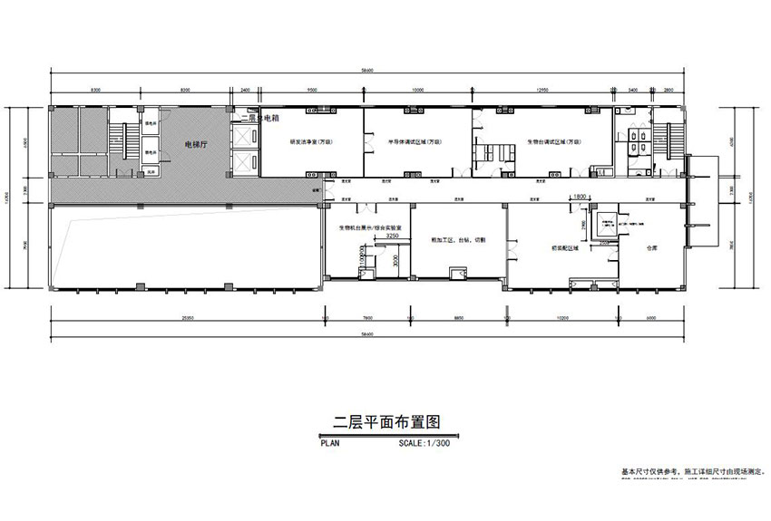
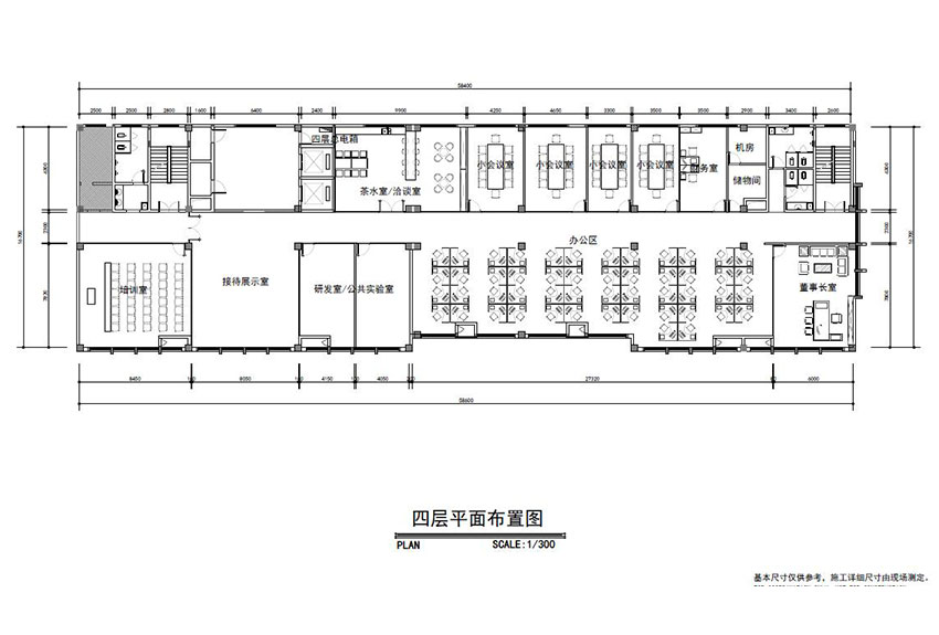
五、设计平面图

 
 
六、现场施工照片
 
 
 
 
 
 
 
 
 
 











 
 
 
 

七、现场成品照片
 
 
 
 
 






八、效果图

 
 













 
快速咨询方案与报价
📞 18662538378
微信咨询
微信二维码
扫码添加微信