当前位置:首页 >> 应用行业案例 > 半导体电子

常州柯特瓦电子有限公司

  • 所属分类:半导体电子
  • 发布时间:2025-12-23 23:03:18
  • 案例概述
一、公司名称:常州柯特瓦电子有限公司

二、工程地址:常州市新北区长江路16号

三、公司简介:常州柯特瓦电子有限公司(简称CTW)创建于2013年,是一家专业的连接器、天线及线束产品全球供应商,广泛应用于工业、通讯、军工、医疗及汽车行业。公司拥有ISO9001:2008、IATF16949:2016国际质量体系认证,于2015年被评为江苏省高新技术企业和民营科技企业,2016年获得知识产权贯标,目前授权专利四十余项。企业在打造企业文化的同时,坚持用企业文化提升企业核心竞争力,使企业在发展中树立起良好的社会形象。

四、项目简介:
1、施工面积:9000平方米;
2、施工项目:
A.消防设计 审图 施工 报验 完工 验收
B.办公室装修工程  顶面 隔断 地面 水电 油漆 新风 成品安装
C.卫生间工程 顶面 隔断 地面 水电 油漆 成品安装
D.车间装修工程 顶面 隔断 地面 油漆 动力电 桥架 气管 新风
成品安装
E.空调消防暖通工程 管道铺设 设备安装 调试
3、施工价格:269万;
4、施工周期:70天。
 
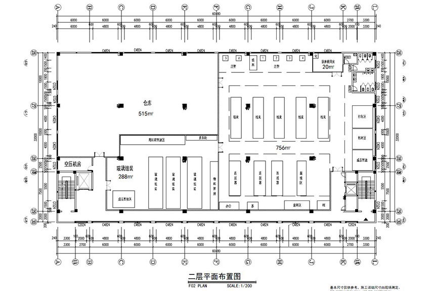
五、设计平面图
 







六、现场施工照片
 
















 
七、现场成品照片






















 
八、效果图
 










 
快速咨询方案与报价
📞 18662538378
微信咨询
微信二维码
扫码添加微信