当前位置:首页 >> 应用行业案例 > 电池能源

艾华新动力电容(苏州)有限公司

  • 所属分类:电池能源
  • 发布时间:2025-12-23 23:15:17
  • 案例概述
一、公司名称:艾华新动力电容(苏州)有限公司

二、工程地址:苏州市吴中区光福镇福利村102号B栋3楼

三、公司简介:艾华新动力在薄膜电容领域处于领军地位,产品主要涉及工业、可再生能源、交通运输、医疗设备,家用电器和消费电子。也专注于为合作伙伴提供原厂设计(ODM)和贴牌生产(OEM)服务。经验丰富的研发团队能够为满足客户应用需求的定制设计和新产品开发提供解决方案。

四、项目简介:
1、施工面积:6800平方米;
2、施工项目:
A.消防设计 审图 施工 报验 完工 验收
B.办公室装修工程  顶面 隔断 地面 水电 油漆 新风 成品安装
C.卫生间工程 顶面 隔断 地面 水电 油漆 成品安装
D.净化车间工程 顶面 隔断 地面 电 FFU净化系统 风淋 成品安装
E.车间装修工程 顶面 隔断 地面 油漆 动力电桥架 气管 成品安装
F.空调消防暖通工程 管道铺设 设备安装 调试
3、施工价格:368万;
4、施工周期:90天。

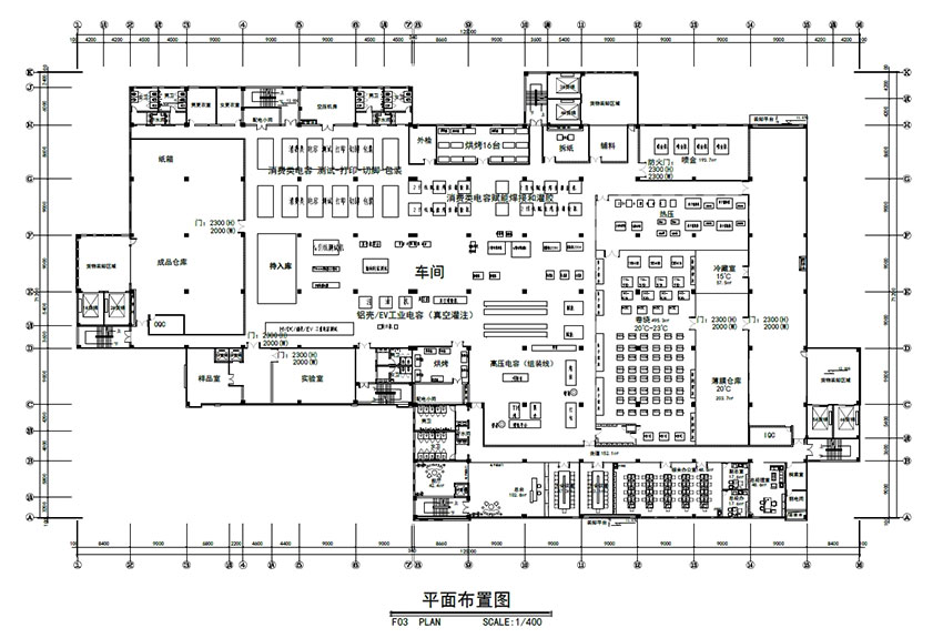
五、设计平面图


六、现场施工照片



















七、现场成品照片






















八、效果图









快速咨询方案与报价
📞 18662538378
微信咨询
微信二维码
扫码添加微信