当前位置:首页 >> 应用行业案例 > 光学科技

苏州瓴辉光电科技有限公司

  • 所属分类:光学科技
  • 发布时间:2025-12-24 00:22:00
  • 案例概述
一、公司名称:苏州瓴辉光电科技有限公司

二、工程地址:中国(江苏)自由贸易试验区苏州片区苏州工业园区华凌街9号1号厂房102单元

三、公司简介:苏州瓴辉光电科技有限公司成立于2021年12月17日,注册地位于中国(江苏)自由贸易试验区苏州片区苏州工业园区华凌街9号1号厂房102单元,法定代表人为缪同群。经营范围包括一般项目:技术服务、技术开发、技术咨询、技术交流、技术转让、技术推广;新材料技术研发;光电子器件制造;光电子器件销售;表面功能材料销售;功能玻璃和新型光学材料销售;货物进出口;技术进出口(除依法须经批准的项目外,凭营业执照依法自主开展经营活动)

四、项目简介:
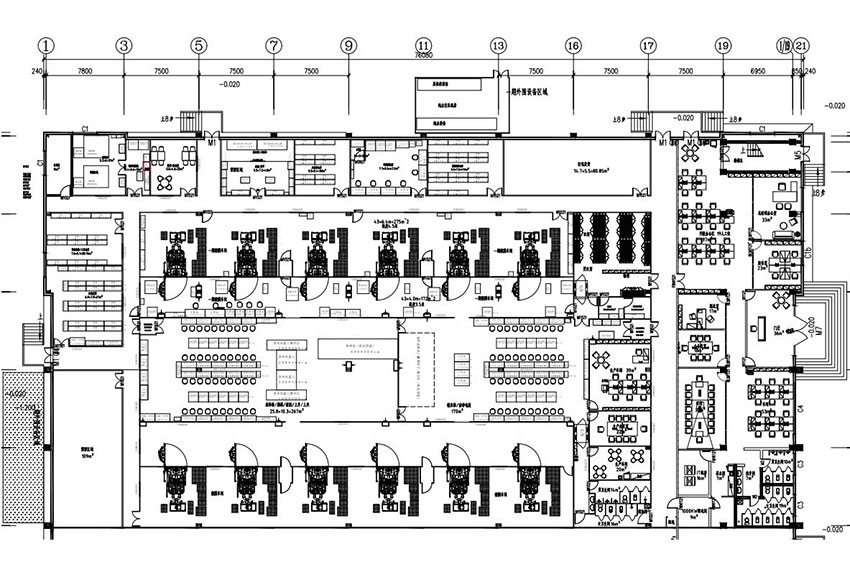
1、施工面积:3500平方米;
2、施工项目:
A.办公室装修工程  顶面 隔断 地面 水电 油漆 新风 成品安装
B.卫生间工程 顶面 隔断 地面 水电 油漆 成品安装
C.车间装修工程 顶面 隔断 地面 油漆 动力电桥架 气管 成品安装
D.洁净车间 通风管道
3、施工价格:398万。
4、施工周期:90天。
 
五、设计平面图



六、现场施工照片
 
 
 
 
 
 
 
 
 
 
 
 
 
七、现场成品照片
 























快速咨询方案与报价
📞 18662538378
微信咨询
微信二维码
扫码添加微信