当前位置:首页 >> 应用行业案例 > 模具机械

江苏苏德涂层有限公司

  • 所属分类:模具机械
  • 发布时间:2025-12-24 00:55:29
  • 案例概述

一、公司名称:江苏苏德涂层有限公司

二、工程地址:常州新北区西夏墅镇微山湖路38号

三、公司简介:江苏苏德涂层有限公司于2008年06月05日在常州国家高新区(新北区)市场监督管理局注册成立,注册资本为2997.28017万元人民币,公司主要经营特种陶瓷、真空涂层设备及配件、刀具制造,销售;金属表面涂覆加工(除电镀)、靶材销售;自营和代理各类商品和技术的进出口业务,公司属于常州非金属矿物制品业行业。

四、项目简介:
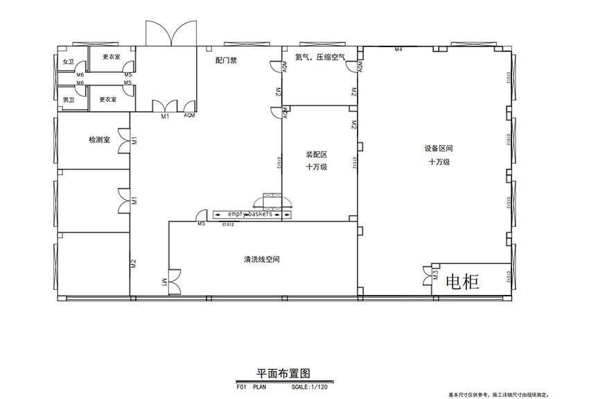
1、施工面积:800平方米;
2、施工项目:
A.车间装修工程 顶面 隔断 地面 油漆 动力电 桥架 气管 新风
成品安装
B.净化车间工程 顶面 隔断 地面 电 机组净化系统 风淋 成品安装
C.动力电桥架 气管 成品安装
D.卫生间工程 顶面 隔断 地面 水电 油漆 成品安装
E.车间装修工程 顶面 隔断 地面 油漆 动力电 桥架 气管 新风
成品安装
F.空调消防暖通工程 管道铺设 设备安装 调试
3、施工价格:108万;
4、施工周期:60天。
 
五、设计平面图



六、现场施工照片
 
 
 
 
 
 







 
 
 
 
七、现场成品照片
 










 
快速咨询方案与报价
📞 18662538378
微信咨询
微信二维码
扫码添加微信