当前位置:首页 >> 应用行业案例 > 电池能源

艾贝思车辆科技(常州)有限公司

  • 所属分类:电池能源
  • 发布时间:2025-12-23 23:28:43
  • 案例概述
一、公司名称:艾贝思车辆科技(常州)有限公司

二、工程地址:常州市金坛区汇贤南路3号物管楼

三、公司简介:汽车零部件研发;摩托车及零部件研发;汽车零部件及配件制造;摩托车零配件制造;技术服务、技术开发、技术咨询、技术交流、技术转让、技术推广;摩托车及零配件零售;机械零件、零部件销售(除依法须经批准的项目外,凭营业执照依法自主开展经营活动)

四、项目简介:
1、施工面积:1800平方米;
2、施工项目:
A.办公室装修工程  顶面 隔断 地面 水电 油漆 新风 成品安装
B.卫生间工程 顶面 隔断 地面 水电 油漆 成品安装
C.车间装修工程 顶面 隔断 地面 油漆 动力电桥架 气管 成品安装
D.洁净车间 通风管道
3、施工价格:108万;
4、施工周期:60天。
 
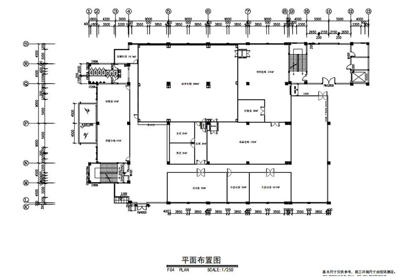
五、设计平面图

 

六、现场施工照片











七、现场成品照片

















快速咨询方案与报价
📞 18662538378
微信咨询
微信二维码
扫码添加微信