当前位置:首页 >> 应用行业案例 > 模具机械

昆山劲达泰机械制造有限公司

  • 所属分类:模具机械
  • 发布时间:2025-12-24 00:35:40
  • 案例概述
一、公司名称:昆山劲达泰机械制造有限公司

二、工程地址:昆山市陆家镇集福路388号

三、公司简介:昆山劲达泰机械制造有限公司是一家以汽车配套产品为主营业务,集设计、研发、生产、销售为一体的实体型企业,公司以汽车空调电磁离合器和压缩机齿轮为主打产品。目前电磁离合器主要为四大系列:电装、三电、杰可赛尔、以及电控系列;压缩机齿轮主要是三电的5系和7系:SD505、SD507、SD508、SD510、SE7H15、SE7B08、SE7B10等。公司产品全部通过新加坡三电及其他重要客户的所有严格测试。公司主要客户为:苏州运恒(新加坡三电)、宁波特赛亚、上海光裕、无锡双鸟、广州光裕等各大压缩机企业。

四、项目简介:
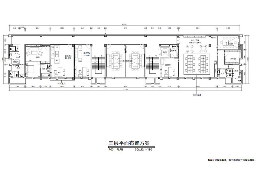
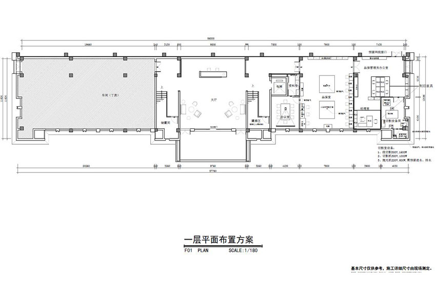
1、施工面积:3050平方米;
2、施工项目:
A.办公室装修工程  顶面 隔断 地面 水电 油漆 新风 成品安装
B.卫生间工程 顶面 隔断 地面 水电 油漆 成品安装
C.车间装修工程 顶面 隔断 地面 油漆 动力电桥架 气管 成品安装
D、空调消防暖通工程 管道铺设 设备安装 调试
3、施工价格:222.5万;
4、施工周期:80天。

五、设计平面图



六、现场施工照片
 
 
 
 
 

 
 
 
 
 
 
 
 
 
 
 
 
 
 
 
 
 
 
 
 

七、现场成品照片
 
 















快速咨询方案与报价
📞 18662538378
微信咨询
微信二维码
扫码添加微信