当前位置:首页 >> 应用行业案例 > 模具机械

苏州亮宇模具科技有限公司

  • 所属分类:模具机械
  • 发布时间:2025-12-24 00:37:01
  • 案例概述
一、公司名称:苏州亮宇模具科技有限公司

二、工程地址:中国(江苏)自由贸易试验区苏州片区苏州工业园区兴浦路109号1号厂房一楼南部

三、公司简介:研发生产、维修、销售:金属模具及配件、夹具、治具、光学元器件;模具抛光及其设备的生产工艺研发;并提供上述相关产品的技术服务、技术咨询、技术转让;自营和代理各类商品及技术的进出口业务。

四、项目简介:
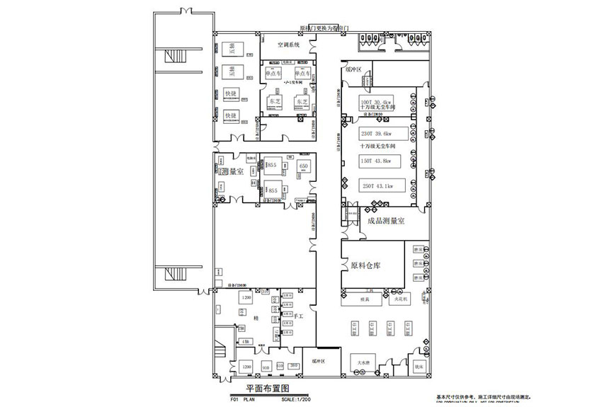
1、施工面积:1500平方米;
2、施工项目:
A.办公室装修工程  顶面 隔断 地面 水电 油漆 新风 成品安装
B.卫生间工程 顶面 隔断 地面 水电 油漆 成品安装
C.车间装修工程 顶面 隔断 地面 油漆 动力电桥架 气管 成品安装
D.洁净车间 通风管道
3、施工价格:198万;
4、施工周期:75天。
 
五、设计平面图



 
六、现场成品照片
 
 
































 
快速咨询方案与报价
📞 18662538378
微信咨询
微信二维码
扫码添加微信