当前位置:首页 >> 应用行业案例 > 模具机械

镇江市顶锋制针科技有限公司

  • 所属分类:模具机械
  • 发布时间:2025-12-24 00:42:26
  • 案例概述
一、公司名称:镇江市顶锋制针科技有限公司

二、工程地址:江苏省镇江高新区南徐大道399号镇江高新区高端装备科技产业园4#1

三、公司简介:镇江市顶锋制针科技有限公司成立于2018年11月29日,注册地位于江苏省镇江高新区南徐大道399号镇江高新区高端装备科技产业园4#1,法定代表人为张允萍。经营范围包括精密机械的制造;不锈钢针、机针、五金工具的生产及销售;货物或技术进出口(国家禁止或涉及行政审批的货物和技术进出口除外)。(依法须经批准的项目,经相关部门批准后方可开展经营活动) 一般项目:第一类医疗器械生产;第一类医疗器械销售;第二类医疗器械销售(除依法须经批准的项目外,凭营业执照依法自主开展经营活动)

四、项目简介:
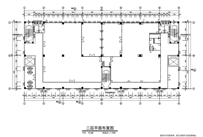
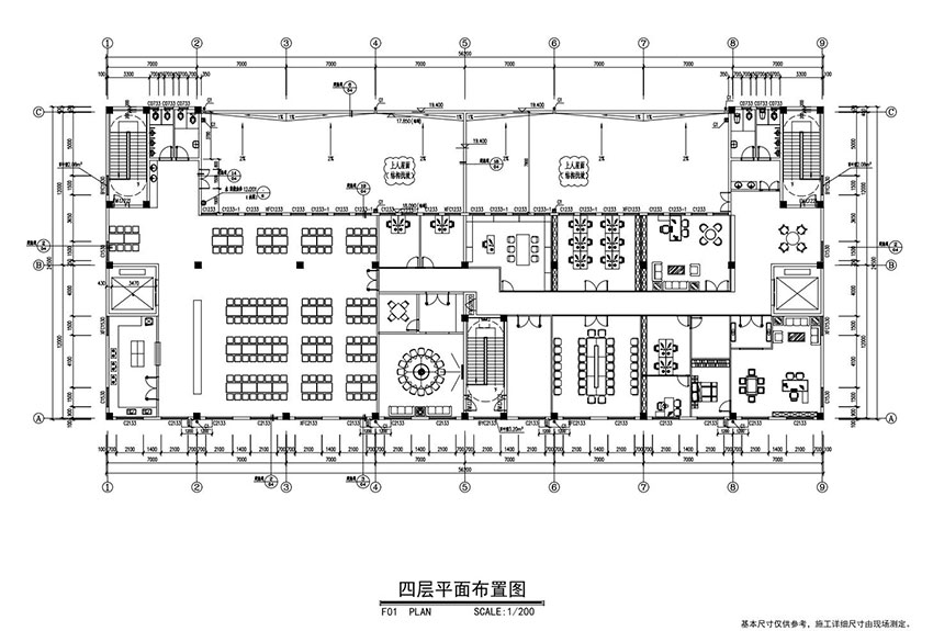
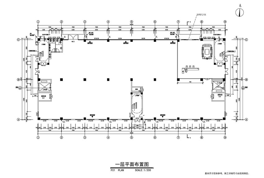
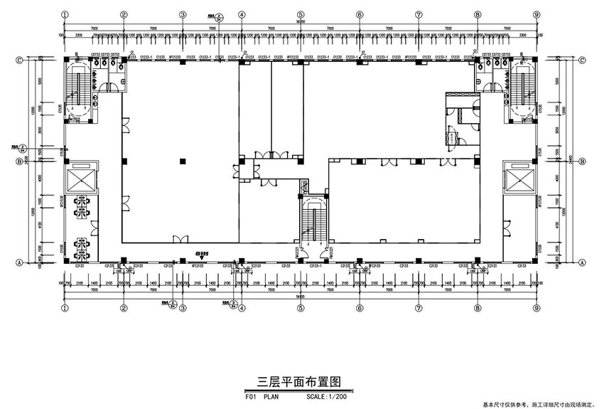
1、施工面积:5000平方米;
2、施工项目:
A.办公室装修工程  顶面 隔断 地面 水电 油漆 新风 成品安装
B.卫生间工程 顶面 隔断 地面 水电 油漆 成品安装
C.洁净车间 通风管道 纯水设备 动力电桥架 气管 成品安装
D.消防工程 管道铺设 设备安装 调试
3、施工价格:368万。
4、施工周期:75天。
 
五、设计平面图



六、现场施工照片
 
 
 
 
 
 
 
 
 
 
 
 
 
 
 
 
 
 
 
 
 
 
 
 
 
 
 
 
 
 
 
 
七、现场成品照片
 

 

































 
快速咨询方案与报价
📞 18662538378
微信咨询
微信二维码
扫码添加微信