一、公司名称:苏州宸泰医疗器械有限公司
二、工程地址:苏州市虎丘区五台山路科技工业坊C区2号楼102室
三、公司简介:苏州宸泰医疗器械有限公司,2020年07月06日成立,经营范围包括许可项目:第二类医疗器械生产;第三类医疗器械生产;第三类医疗器械经营(依法须经批准的项目,经相关部门批准后方可开展经营活动,具体经营项目以审批结果为准) 一般项目:第一类医疗器械生产;第一类医疗器械销售;第二类医疗器械销售;技术服务、技术开发、技术咨询、技术交流、技术转让、技术推广(除依法须经批准的项目外,凭营业执照依法自主开展经营活动)
四、项目简介:
1、施工面积:2900平方米;
2、施工项目:
A.车间装修工程 顶面 隔断 地面 油漆 动力电 桥架 气管 新风
成品安装
B.净化车间工程 顶面 隔断 地面 电机组净化系统 风淋 成品安装
C.动力电桥架 气管 成品安装
D.卫生间工程 顶面 隔断 地面 水电 油漆 成品安装
E.车间装修工程 顶面 隔断 地面 油漆 动力电 桥架 气管 新风
成品安装
F.空调消防暖通工程 管道铺设 设备安装 调试
3、施工价格:300万;
4、施工周期:90天。
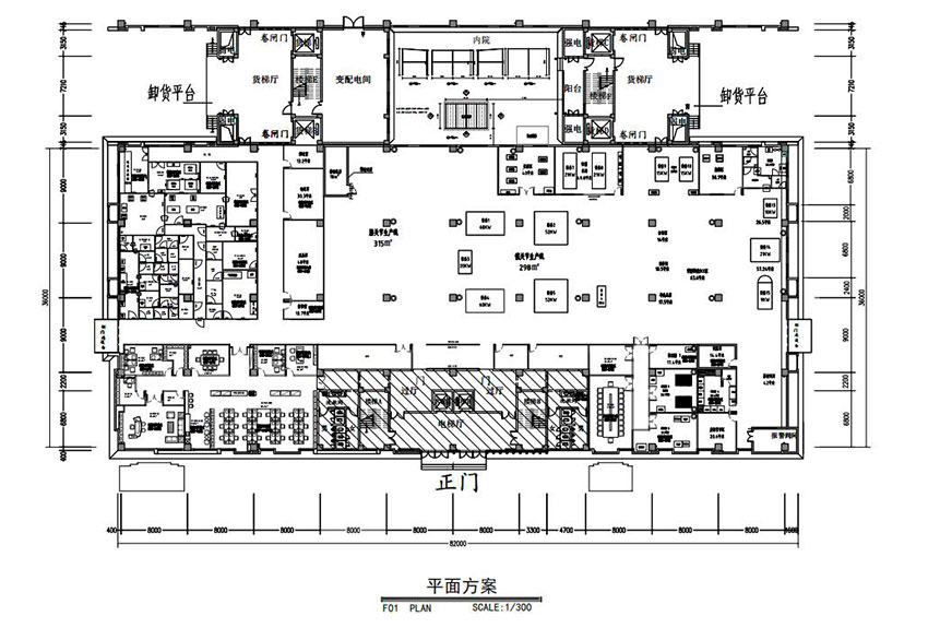
五、设计平面图

六、现场施工照片









七、现场成品照片










