当前位置:首页 >> 应用行业案例 > 生物医药

苏州派尼迩医疗科技有限公司

  • 所属分类:生物医药
  • 发布时间:2025-12-23 23:41:42
  • 案例概述
一、公司名称:苏州派尼迩医疗科技有限公司

二、工程地址:苏州高新区马涧路168号14幢401室

三、公司简介:苏州派尼迩医疗科技有限公司成立于2022年05月19日,注册地位于苏州高新区马涧路168号14幢401室,法定代表人为隋晨光。经营范围包括许可项目:第二类医疗器械生产;第三类医疗器械生产;第三类医疗器械经营;第三类医疗器械租赁(依法须经批准的项目,经相关部门批准后方可开展经营活动,具体经营项目以审批结果为准)一般项目:技术服务、技术开发、技术咨询、技术交流、技术转让、技术推广;医学研究和试验发展(除人体干细胞、基因诊断与治疗技术开发和应用);人工智能基础软件开发;人工智能应用软件开发;软件开发;智能机器人的研发;人工智能行业应用系统集成服务;信息系统集成服务;第二类医疗器械销售;第二类医疗器械租赁;专用设备修理;通用设备修理。

四、项目简介:
1、施工面积:1243.25平方米;
2、施工项目:
A.办公室装修工程  顶面 隔断 地面 水电 油漆 新风 成品安装
B.卫生间工程 顶面 隔断 地面 水电 油漆 成品安装
C.洁净车间 通风管道 纯水设备 动力电桥架 气管 成品安装
D.消防工程 管道铺设 设备安装 调试
3、施工价格:169.8万。
4、施工周期:35天。

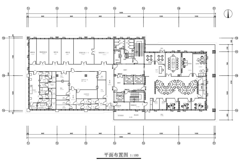
五、设计平面图



六、现场施工照片
 
 
 
 
 
 
 




 
 
 
 
 
 
 
 
 
 
 
 

七、现场成品照片
 


 
 
 
 
 
 
 
 

 
 
 











 
快速咨询方案与报价
📞 18662538378
微信咨询
微信二维码
扫码添加微信