当前位置:首页 >> 应用行业案例 > 生物医药

江苏海普功能材料有限公司

  • 所属分类:生物医药
  • 发布时间:2025-12-23 23:48:20
  • 案例概述
一、公司名称:江苏海普功能材料有限公司

二、工程地址:苏州工业园区朝前路28号生物医药产业园五期D区28号楼101、201、301、501单元

三、公司简介:江苏海普功能材料有限公司成立于2013年08月12日,注册地位于苏州工业园区朝前路28号生物医药产业园五期D区28号楼101、201、301、501单元,法定代表人为蔡建国。经营范围包括一般项目:新材料技术研发;资源再生利用技术研发;核电设备成套及工程技术研发;新兴能源技术研发;污水处理及其再生利用;非金属矿物制品制造;气体、液体分离及纯净设备制造;高性能纤维及复合材料制造;生物基材料制造;环境保护专用设备制造;合成材料销售;生态环境材料销售;专用化学产品销售(不含危险化学品);环境保护专用设备销售;新型膜材料销售;金属基复合材料和陶瓷基复合材料销售;高性能纤维及复合材料销售;机械设备销售;稀土功能材料销售;生物基材料销售;非金属矿及制品销售;货物进出口;化工产品销售(不含许可类化工产品);技术服务、技术开发、技术咨询、技术交流、技术转让、技术推广(除依法须经批准的项目外,凭营业执照依法自主开展经营活动)江苏海普功能材料有限公司对外投资9家公司。

四、项目简介:
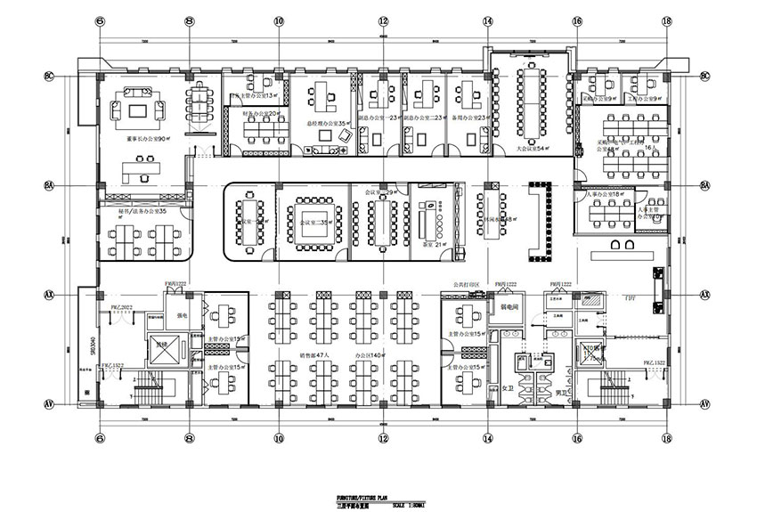
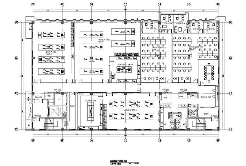
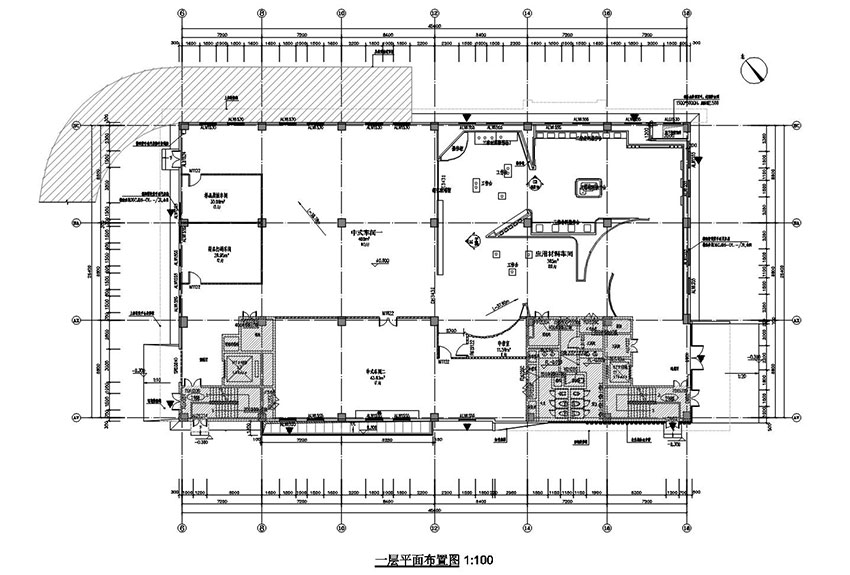
1、施工面积:3600平方米;
2、施工项目:
A.办公室装修工程  顶面 隔断 地面 水电 油漆 新风 成品安装
B.卫生间工程 顶面 隔断 地面 水电 油漆 成品安装
C.车间装修工程 顶面 隔断 地面 油漆 动力电桥架 气管 成品安装
D.消防工程 管道铺设 设备安装 调试
3、施工价格:224.8万。
4、施工周期:60天。
 
五、设计平面图



 

六、现场施工照片
 

























 
七、现场成品照片
































快速咨询方案与报价
📞 18662538378
微信咨询
微信二维码
扫码添加微信